База знаний
О сложностях проектирования

Помимо противоречий нормативно-технической документации⎘ на пути проектировщика часто возникают проблемы, которые сложно решить в одиночку. Озвучим некоторые из них, чтоб они стали известны не одному ему, но и другим участникам процесса строительства (реконструкции), а может быть и научному сообществу.

Мальчик думает над проектом

По аналогии с предыдущей статьёй, расположим проблемы по порядку, от наиболее актуальной — к наименее важной, поясним их и дадим им оценку.

СОДЕРЖАНИЕ:

  1. Скудность типовых проектов.
  2. Сложность изложения методических указаний.
  3. Разделение проекта на этапы.
  4. Замкнутый цикл при проектировании.
  5. «Слабое» составление технического задания.
  6. Нововведения.
  7. Экспертиза проекта.
  8. Компромисс между безопасностью и удобством обслуживания.
  9. Расчёты.
  10. Определение необходимого запаса материалов.
  11. Взаимодействие с производителями оборудования.
  12. Распределение трудоёмкости проектирования на стадиях П и Р.
  13. Распечатка документации.
  14. Субъективные факторы.

ПЕРЕЧЕНЬ ПРОБЛЕМ, С КОТОРЫМИ ПРИХОДИТСЯ СТАЛКИВАТЬСЯ ПРИ ПРОЕКТИРОВАНИИ:

1. Скудность типовых проектов.

Типовые проекты позволяют значительно упростить и ускорить процесс проектирования, а также исключить серьёзные ошибки. В недавнем прошлом типовые проекты охватывали всю сферу отечественной промышленности, а в настоящий момент работа над их созданием и актуализацией ведётся лишь в избранных отраслях.

На наш взгляд, немаловажный вклад в процесс проектирования могла бы внести актуализация существующих типовых проектов, не говоря уж о создании новых.

2. Сложность изложения методических указаний.

О сложностях работы с методическими указаниями при выборе ОПН мы писали ранее⎘, но есть и другие примеры. Методические указания по определению времени насыщения трансформаторов тока при КЗ входят в их число.

Диаграмма насыщения трансформатора тока

Сложно уловить логику в этих документах даже опытному проектировщику.

3. Разделение проекта на этапы.

Самым распространённым случаем является разделение процесса проектирования на этапы П и Р, проектной и рабочей документации. Часто, к первому этапу добавляют ещё этап ОТР, основных технических решений. На первый взгляд, всё достаточно логично: там, где требуется рассмотрение различных вариантов, нужна стадия ОТР, в проектной документации закладываются основы, а в рабочей — идёт детальная проработка технических решений. Но! До сих пор не существует системного документа (или документов), который бы определял границы между этими стадиями, — найти можно только скудные указания к определённым разделам (например, разделам РЗА, АСУ ТП, АИИС КУЭ) в стандартах некоторых организаций.

Что мы имеем на выходе? Расчёт уставок выполняется на стадии ОТР, там же производится выбор оборудования. На стадии РД нельзя указывать конкретного производителя оборудования, но прорисовать все схемы уже в ПД необходимо.

4. Замкнутый цикл при проектировании.

Редко, когда работу по проектированию можно выполнить при параллельном (независимом) или последовательном участии исполнителей. Чаще всего работа носит цикличный характер: от принимаемых технических решений (в томах ИОС, ПЗ) зависит разделение на этапы (в томе ПОС), состав работ (ПОС) определяет стоимость строительства (сметная документация), а после смет сводятся общие экономические показатели (ПЗ) и составляется календарный график строительства (снова ПОС).

Цикл проектирования

Только правильное и своевременное взаимодействие всех участников способно дать оптимальный результат.

5. «Слабое» составление технического задания.

Техническое задание без детальных требований приводит к сложностям при взаимодействии проектировщика с заказчиком, а также невозможности заранее оценить трудозатраты, что может значительно повлиять на стоимость проектирования и сроки.

Составлением технического задания на проектирование должен заниматься специалист, имеющий достаточный опыт проектирования.

6. Нововведения.

Само по себе совершенствование системы проектирования положительно сказывается на развитии энергетики. Но, сваливая на одного лишь проектировщика разработку новых продуктов, на выходе можно получить совсем не тот результат, что ожидаешь.

Перейдём к примерам:

  • в последнее время широкое распространение получило понятие «информационная безопасность», но объём проектирования по нему до сих пор неясен;
  • детально не проработаны такие устройства, как «анкерная линия», или «анкерные столбики», применяемые для безопасной эксплуатации оборудования;
  • требования к сметной документации меняются из года в год;
  • сюда же можно отнести и расчёт насыщения трансформаторов тока, упомянутый выше.
Человек на крыше ЗРУ 10 кВ

Необходима экспериментальная наладка всего нового перед внедрением в обширную практику.

7. Экспертиза проекта.

В рамках строительства, реконструкции или технического перевооружения объектов возникает необходимость проведения экспертизы. Экспертиза может быть государственной или негосударственной. Для опасных производственных объектов проводится экспертиза промышленной безопасности. Передаваться на экспертизу может комплект проектной документации со сметами и результатами инженерных изысканий, а может — только техническая часть или сметы. Разобраться в этих перипетиях очень непросто.

Решить вопрос позволяет опыт выполнения проектов-аналогов и внутренний регламент заказчика.

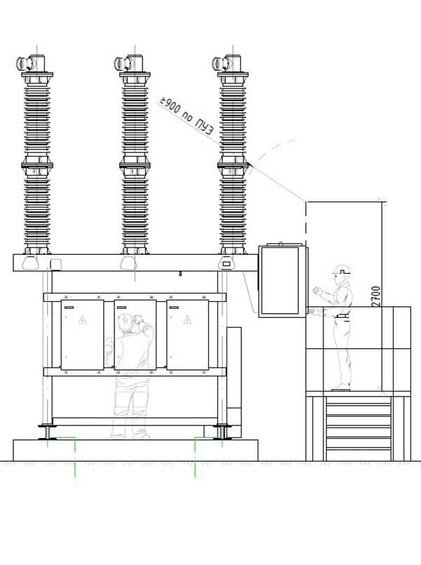
8. Компромисс между безопасностью и удобством обслуживания.

Кажется очевидным, что преимущество первого над вторым не вызывает сомнений. Но бывают случаи, когда всё складывается в пользу последнего, а обеспечить безопасность при этом оказывается непросто.

Выключатель 110 кВ с площадкой обслуживания
Выключатель 110 кВ с площадкой обслуживания

Пример можно увидеть на картинках. Производители высоковольтных выключателей размещают шкафы привода таким образом, что для обеспечения их безопасного обслуживания бывает сложно обойтись без ограждающих конструкций.

9. Расчёты.

При проектировании не избежать расчётов. Это могут быть расчёты фундаментов на несущую способность, расчёт токов КЗ и уставок защит, падения напряжения в цепях ТН и ещё много разнообразных вычислений. Кто-то пользуется руководящими указаниями и выполняет расчёты вручную, кто-то покупает лицензию и пользуется специализированными программами, кто вычисляет онлайн на тех или иных платформах. Но итог получается разным.

Необходима систематизация методов расчёта.

10. Определение необходимого запаса материалов.

Любой уважающий себя проектировщик делает поправку на расход материалов при монтаже. Но не всякий знает, какой «запас» допустим. Какое значение нужно добавлять к длине кабеля на плане, каким необходимо принимать расход песка и щебня, и насколько важны излишки бетона при погружении в них арматуры? Читайте в нашем следующем материале⎘.

Строитель задумался, ему не хватило материалов

11. Взаимодействие с производителями оборудования.

В силу определённых особенностей данная проблема может быть и не проблемой вовсе, для некоторых участников процесса проектирования. Но сложности возникают у каждого.

Ввиду того, что уже на этапе ОТР заказчик может потребовать сравнение стоимости оборудования, поставляемого разными производителями, а технические требования к этому моменту ещё не сформированы, у производителя появляется возможность пойти на хитрость и предоставить «light-версию» своего продукта, дабы выиграть конкуренцию в цене. На выходе получаем совсем не тот продукт или не ту цену продукта, что ожидали увидеть в начале.

Более прогрессивной могла бы стать взаимосвязь проектировщика с производителем через заказчика, как заинтересованной стороны, а значит способной оказать существенное влияние на переговоры.

12. Распределение трудоёмкости проектирования на стадиях П и Р.

Не секрет, что для оценки стоимости проектирования разработан такой механизм, как сметы на ПИР. В сметах на ПИР происходит распределение стоимости по этапам (проектная/ рабочая) в пропорции 40/60. Но в современных условиях усложнения процесса проектирования на первом этапе — с увеличением состава ПД, детальной проработкой технических решений и необходимостью дополнительных согласований — эта пропорция не отражает действительности.

При выполнении полного комплекса работ одним исполнителем данный вопрос неактуален, но при дифференциации этапов может оказаться, что первый из них — нерентабельный.

Необходимо комплексное реформирование системы определения стоимости проектирования, в противном случае энергетику ждёт неминуемое снижение уровня квалификации инженерного состава.

13. Распечатка документации.

Несмотря на активное развитие электронного документооборота, проектировщику до сих пор приходится отправлять печатную версию выполненного проекта заказчику, а также смежным организациям, требующим согласования. Количество же печатных версий может доходить до 7-ми.

Предлагаем отказаться от такого объёма макулатуры ради... 🤔 сохранения природы.

14. Субъективные факторы.

В заключение обратим внимание на то, что только при всестороннем погружении в проект можно получить хороший результат. Когда, помимо работы самого проектировщика, появится вовлечённость заказчика в процесс; когда уйдут бескомпромиссные требования, а своевременное предоставление исходной информации станет нормой; когда эксперт сможет аргументировать свои требования нормами, а не собственным мнением; когда замечания будут выдаваться сводом, а не «порциями», и с конкретикой, а не ссылаясь на какой-то необъятный документ, — только тогда можно говорить о своевременном и качественном выполнении работы.

ВЫВОД

Все указанные проблемы можно и нужно решать. Какие-то можно решить только на законодательном уровне, какие-то — включив находчивость и смекалку, а какие-то — изменив отношение или даже менталитет. Предупреждён — значит вооружён! О плохом — достаточно. Дальше — только хорошее, полезное и очень интересное.

СЛУЧАЙ ИЗ ПРАКТИКИ. С оглядкой на п.2, провели выбор и проверку ТТ во вводных ячейках 10 кВ. Исходные условия не самые простые: большие номинальные токи и токи КЗ. Расчёт времени насыщения стали в ТТ показал необходимость применения нестандартного оборудования, с разрезным магнитопроводом. Сформировали требования, связались с производителем, получили габаритный чертёж ТТ — не умещается в габарит ячейки. Скорректировали параметры, изменив вторичный номинальный ток, — подходит габарит, но такое решение не устраивает заказчика. Вывели ТТ за пределы ячейки, установив на ОРУ, — не каждый производитель готов реализовать.

Как итог, установили на стороне 10 кВ силового трансформатора трансформатор тока номиналом 35 кВ в опорном исполнении, взамен установленных в ячейке.

Трансформаторы тока 35 кВ, установленные на ОРУ

Применение нового, современного, и, как следствие, более прихотливого оборудования (в данном случае — МП РЗА) влечёт за собой необходимость учёта новых факторов (у нас — перенасыщение ТТ при КЗ), способных на него негативно повлиять.

Присоединяйтесь, чтобы не пропустить самое важное

РЕКОМЕНДУЕМ К ПРОЧТЕНИЮ

  • Энергетик
  • 13 января 2023

Противоречия в энергетике

Подробнее

  • Энергетик
  • 30 марта 2023

Электрические подстанции. Важные правила, интересные особенности и полезные лайфхаки

Подробнее

Беспроводная передача энергии

Беспроводная передача энергии с помощью света

Японские учёные нашли способ передачи, безвредный для человека — подробнее в нашем канале

В телеграм
Лучшее, что Вы можете сделать для нас, выразив благодарность, — это подписаться на наш телеграм-канал

JB Cookies

Обратная связь через Адрес электронной почты защищен от спам-ботов. Для просмотра адреса в браузере должен быть включен Javascript.
©2020-2025. Энергетик.ру — все права защищены